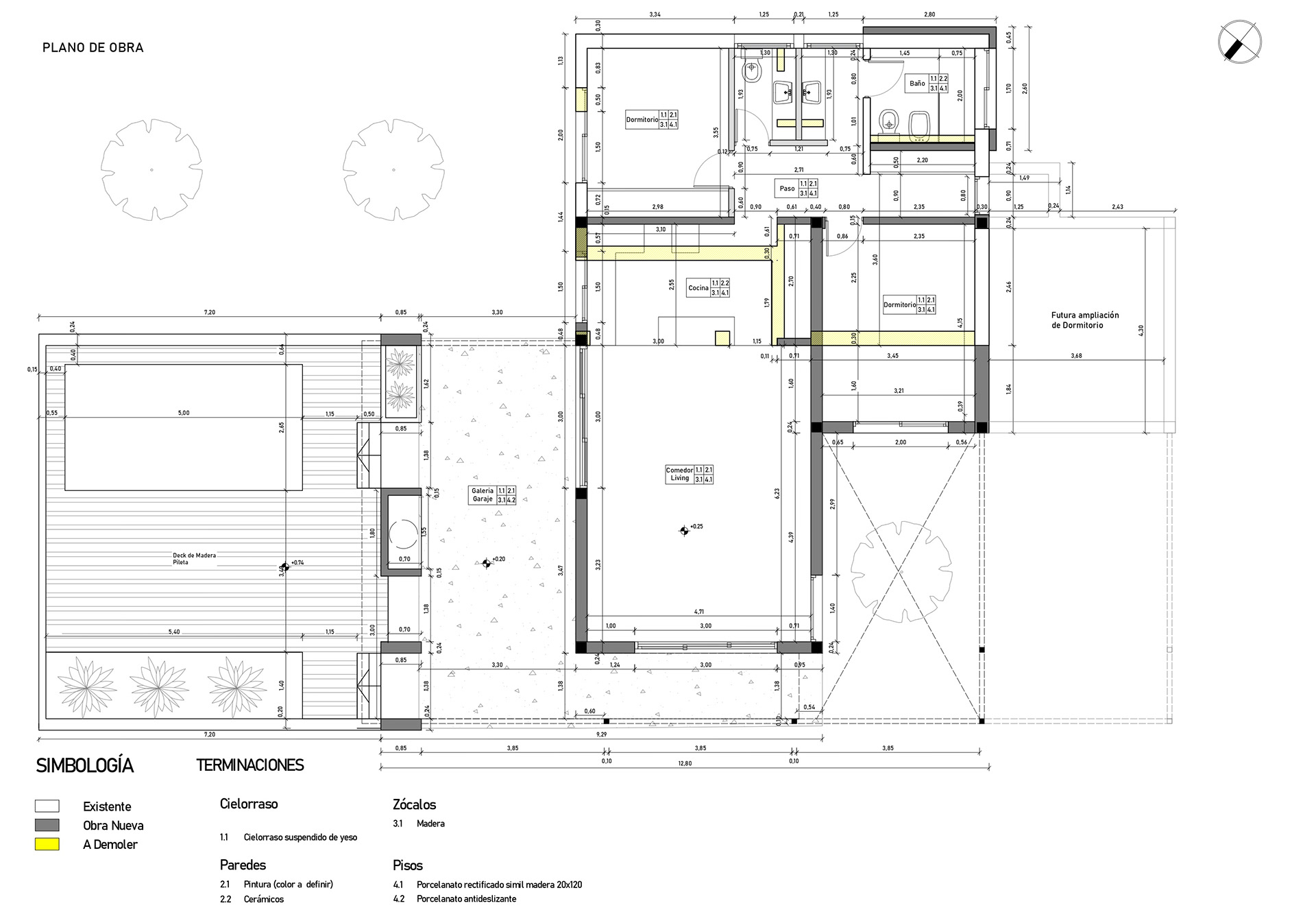
El encargo tenía como finalidad ampliar y poner en condiciones la vivienda existente, de modo que pudiera ser habitada por dos personas con discapacidad autoválidas, garantizando a la vez espacios adecuados para la presencia de cuidadores y acompañantes terapéuticos, así como la supervisión permanente de la familia, que reside en otra vivienda dentro del mismo predio. 
El desafío principal fue proyectar y ejecutar una intervención que respondiera a las necesidades específicas de accesibilidad y confort de los usuarios, respetando por un lado los retiros municipales establecidos por el Código de Planeamiento Urbano, y por el otro, aprovechando la estructura y parte de la construcción existente, integrándola dentro de la nueva propuesta para evitar una demolición total y permitir una ampliación coherente con las condiciones originales del sitio.
Documentación Anteproyecto
Registros de Vivienda Preexistente
Back to Top