PB Studio
Servicios de soporte externo
Proyecto y Dirección
Proyectos Renderizados
Documentación de Obra
Equipo de Trabajo
Contacto
PB Studio
Servicios de soporte externo
Proyecto y Dirección
Proyectos Renderizados
Documentación de Obra
Equipo de Trabajo
Contacto

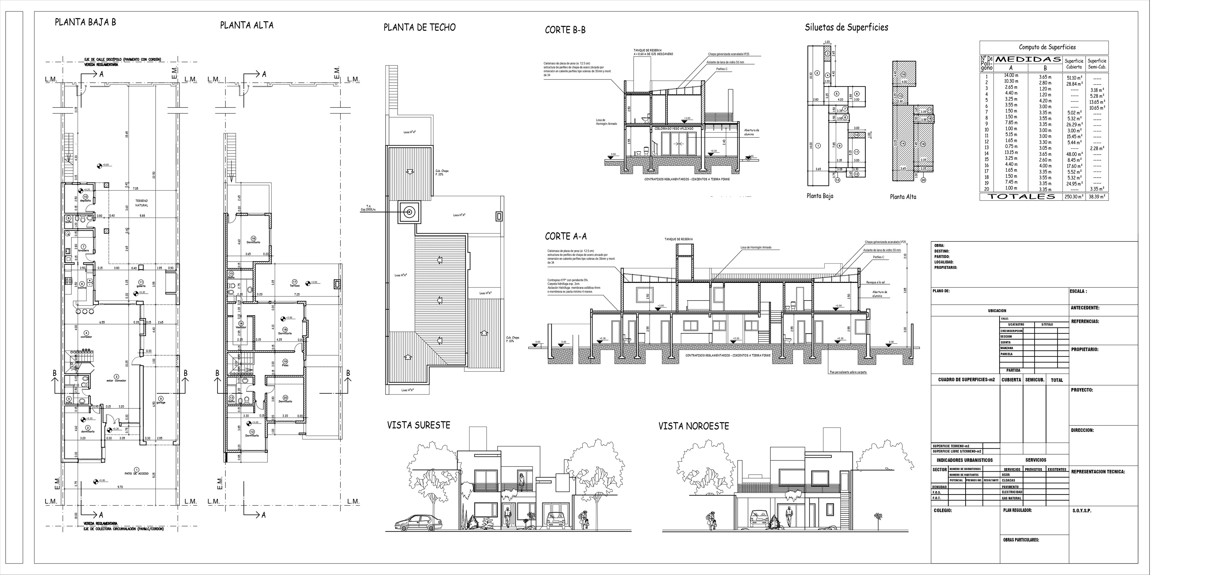
0.1 Plano Conforme a Obra

You may also like

Anexo Escuela 503 - Perez Buccheri
2024
02. Plano Municipal
2024
Ampliación y Reforma Tandil - Legajo - Perez Buccheri
2024
Edificio de Viviendas - Perez Buccheri
2024
↑Back to Top
Powered by Adobe Portfolio